Vasmagos tekercs induktivitasa:
Tekercs adatai:
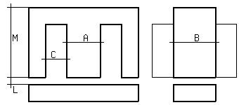
A:
mm
Induktivitas:
B:
mm
Ellenallas:
C:
mm
Huzalhossz:
M:
mm
t telit:
L:
mm
I telit:
Menetszam:
Reztomeg:
Huzalatmero:
mm
t RL:
Rel. perm.
Rezkitoltes:
B max:
T
ablak min:
U tekercs:
V